Jubiläumsbauvisite 39: Wohnbau Delugstraße 2003
Architektur: MartererMoosmann
BauvisiteArchitektur: MartererMoosmann
Mitarbeiter: Barbara Urban, Michael Neumann
Bauherr: Dr. Alfred Strommer, PSK-Immobilienleasing GmbH
Statik: Brusatti GesmbH
Haustechnik: Ökoplan
Bauphysik: Wolfgang Hebenstreit
Grünanlagen: Kirchner
Es führen Georg Marterer und Thomas Moosmann.
Das Architektenteam MartererMoosmann
(seit Ende 2004 unter Marterer & Partner sowie Moosmann getrennt agierend) wurde 1998 vom Bauherrn Dr. Strommer mit der Errichtung zweier Mietobjekte im noblen Döblinger Villenviertel um den Kaasgraben beauftragt. Die Finanzierung übernahm die PSK-Immobilienleasing GmbH, die ursprüngliche Widmung sah gekuppelte Bauweise vor. Während des Rohbaus kam es durch den Einspruch eines Anrainers zu einer Umwidmung des Grundstücks und dadurch zu einer kompletten Neuplanung des Objekts, einem Baukörper, der die neue vierstöckige bauordnungsgemäße Kubatur nachzeichnet. Konsequent folgt die Gestaltung des Baukörpers dem Entwurfgedanken des „Ur-Hauses“ durch gleichartige, flächige
Behandlung von Wand und Dach mit Aluminium und Glas. Die Fassade
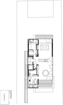
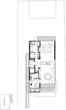
gliedert sich durch großzügige Fensterbänder, wobei Glas und Metall gleich hohe Streifen bilden. Eingeschnittene Loggien geben der Straßenfront plastische Tiefe, gartenseitig treten Balkone mit vorderen Alu- und seitlichen Glasbrüstungen als flächige Scheiben aus der Fassade. Das Gebäude beinhaltet zwei übereinander gestapelte Maisonetten und ein gemeinsames Gästehaus, das aus der Einhausung der alten Garage in Nurglas-Konstruktion entstand. Beide Wohnungen werden von außen erschlossen – die untere ebenerdig, die obere über eine einläufige Außentreppe im Westen. Die Eingangsebene enthält lediglich
einen komprimierten Sanitärblock, ansonsten dominiert der offene Grundriss mit Nord- und Südterrasse. Im oberen Geschoß sind Schlafräume und Bad. Das Herausschneiden und -ziehen von Elementen aus dem Baukörper und die Übereck-Verglasungen führen im Innenraum zu unerwartet schönen und unkonventionellen Raumerlebnissen.
